Coastal Garden
Situated on a steep slope, this south-facing site was designed to contend with all the challenging elements of coastal exposure, with every plant chosen for its ability to adapt and survive in harsh coastal conditions.
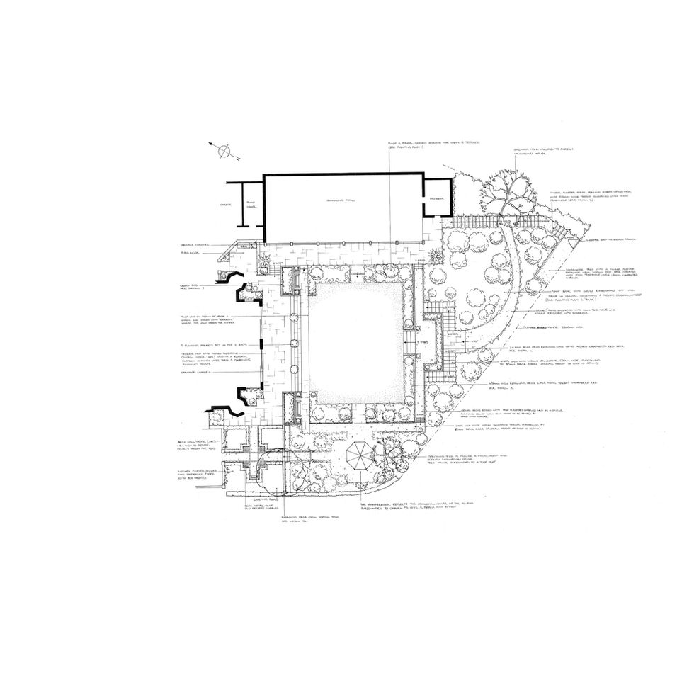
The garden reflects the formality and proportions of the Edwardian style with a formal garden and lawn on the upper terrac. The lower terrace, which juts out towards the sea like an infinity, is planted all round with a wide border of lavender to give the illusion of it meeting the sea.
The lower part of the garden, not visible from the house, is walked through every day on the way to the beach and represents a transition from the cultivated garden to the coast. This area suited a wilder planting scheme, in tune with the informal, meandering lines of the coast, emphasised by a mass of foliage and colour spilling over sleeper steps and curving gravel path.
Every plant was chosen for its ability to adapt and survive in these harsh coastal conditions. An abundance of lavender, iris and nepeta were planted to reflect the undulating waves of the sea, with phlomis providing complimentary colour. A mixture of grasses incorporated into the borders added movement, creating an effect of sunlight coursing through the seed-heads.
Gradually the formality gives way to wilder species of valerian, erigeron, thyme, lavatera, tree lupins, punctuated by evergreen shrubs. Masses of grasses link the two distinct areas of planting.























